•
Arch
Industrial
Graphic
About
Contact
•
Arch
Industrial
Graphic
About
Contact
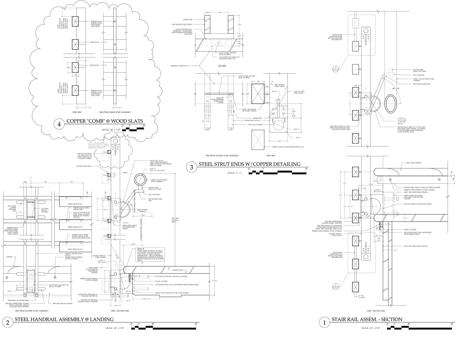
Details, Details
Various efforts on the architectural detailing front.
Here’s an exploration of my architecture, drawing and furniture design and the various efforts on the detailing front.
↑